El proyecto cambia la manera de habitar un piso del Ensanche barcelonés de 1910 mediante pequeñas operaciones muy puntuales, aprovechando cada rincón como si de un puzle se tratara, cediento todo el protagonismo a los elementos existentes; conservándolos, reaprovechándolos o modificándolos para conseguir unos nuevos espacios que parece siempre han sido así.
El proyecto consiste en la reforma integral de una vivienda del Ensanche barcelonés del año 1910 que no había sufrido ninguna modificación sustancial en sus 100 años de historia.
El estado del piso, sin embargo, era lamentable, ya que su anterior inquilino sufría de Síndrome de Diógenes, de manera que la acumulación de todo tipo de residuos (hasta llegar a colmatar todo el interior) por una parte lo había preservado de cualquier modificación, pero por otra, había dejado muchos de sus elementos en muy mal estado.
Los techos (con magníficos rosetones y molduras) y los suelos (de pavimento hidráulico de pieza pequeña) se habían conservado relativamente bien, así como algunas carpinterías originales.
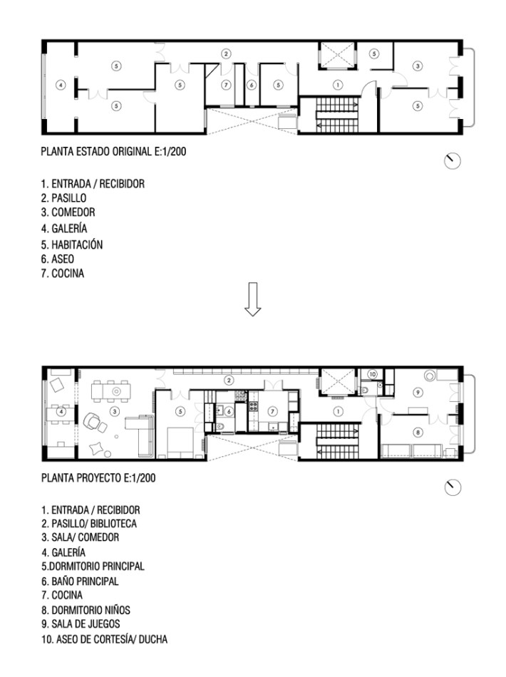
El punto de partida, pues, consiste en conservar una distribución que permite mantener todos los magníficos techos y suelos del piso, y concentrar las obligadas variaciones que el nuevo programa requiere en aquellos espacios que no tienen estas características.
Para poder conseguir este objetivo, se trabaja pieza por pieza, consiguiendo en cada caso que el nuevo programa se adecúe a las estancias marcadas por techos y suelos, empotrando armarios o desplazando tabiques sin modificar el límite de las estancias, de manera que éstas ganan funcionalidad, sin perder los límites originales.
Todas las carpinterías se conservan, bien en su posición original o bien desplazándolas a nuevas estancias abiertas en el volumen “interior” del piso donde se realiza una nueva cocina y el baño del dormitorio principal, siempre respetando los suelos y las ventanas al patio en su posición original.
La holgada altura de esta vivienda también se aprovecha a nuestro favor: en el baño del dormitorio principal, se realiza un nuevo suelo elevado 60 cm respecto del original, permitiendo tener la bañera bajo la ducha (bañera y ducha en un mismo espacio!), y consiguiendo un espacio de almacenamiento-despensa muy útil bajo el suelo, accesible desde el pasillo, junto a la cocina. Esta elevación del baño significa también que para acceder a él es necesario subir tres escalones desde el dormitorio, lo cual confiere al piso una sensación de domesticidad mayor, al introducir un elemento más típico de una casa que de un piso de una sola planta.
Otro espacio característico de esta reforma es el largo pasillo interior, muy común en esta tipología de vivienda del ensanche barcelonés. Este espacio tenía una anchura ideal para convertirlo no sólo en un espacio de paso, sinó en algo más, así que con unos sencillos estantes que abarcan toda la longitud del pasillo, y con unos muebles bajos de la misma longitud, se convierte el espacio en una holgada biblioteca y en un espacio de almacenamiento.
Unas lámparas de sobremesa de Ikea colocadas al revés en el techo le acaban de dar un toque surreal al espacio al mismo tiempo que una iluminación específica muy agradable.
SELECCIONADO PREMIOS FAD 2012
Autor: Anna & Eugeni Bach, arquitectes
Fecha de finalización de la obra: Agosto 2011.
Superficie construida: 130 m2
Presupuesto total de la obra: Privado
Nombre del promotor / propietario: Privado
Constructor: Petropolis, S.L.
Emplazamiento: c/ Consell de Cent, 423
Fotografías: Tiia Ettala















