La casa MMMMMS se encuentra en las afueras de Camallera; en una urbanización de reciente construcción dispuesta en una ladera, con vistas al pueblo y, consecuentemente, muy visible desde éste.
En esta zona existe una normativa muy simple, que únicamente se refiere a cinco conceptos, pero muy restrictiva en cuanto a materiales de las fachadas (revestimiento de piedra rústico) y tipo de cubierta (de teja árabe envejecida, a dos aguas y pendiente de 25 º). La normativa persigue, de esta manera, conseguir que las edificaciones que se realicen en esta zona tengan un aire “rural” y se asemejen a las tradicionales masías catalanas de la zona.
La primera reflexión a estos puntos de partida radica en entender la masía no como un elemento aislado del paisaje sino como una edificación que tiene sentido cuando está ligada a una superficie (normalmente extensa) de paisaje agrícola y productivo. La masía pierde su sentido cuando existen 20, de un tamaño similar, en una superficie de no más de 10 hectáreas y, sobre todo, desligadas de un contexto “de producción”.
El proyecto, cumpliendo estrictamente la normativa, pretende desligarse de la imagen de masía catalana para “asociarse” veladamente a otro tipo de construcción típica de la zona, más comúnmente cercana a los núcleos urbanos y de un tamaño y densidad parecida a la resultante en esta zona: el almacén agrícola.
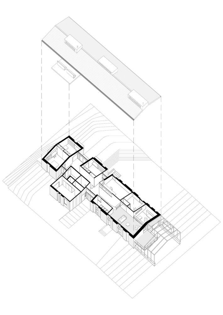
En este sentido, el proyecto de la Casa MMMMMS busca un tipo de calidad espacial también derivado de este tipo de construcciones, con un espacio a gran altura en el que se disponen otras piezas más pequeñas. Éstas ofrecen una mayor intimidad en su interior, generan unos espacios entre ellas en el límite con el exterior, y ayudan a iluminar transversalmente la casa y a poder ver el paisaje a través.
El espacio de circulación interior de la vivienda adquiere unas proporciones dignas de un exterior, con una mayor altura y con varios volúmenes que ofrecen ventanas a este espacio. La voluntad en este proyecto es la de desvanecer el límite entre interior y exterior o, visto de otra manera, conseguir las cualidades de un exterior en el interior de la vivienda, y viceversa, el confort de un interior en el exterior.
Siguiendo esta lógica, la sección de la casa, en el extremo con vistas al pueblo y a los Pirineos, continúa en el exterior mediante un porche a doble altura que, con el tiempo, esperamos sea cubierto por vegetación y persianas de madera que ofrecerán la sombra necesaria en los meses de verano.
La casa ha sido diseñada para conseguir un óptimo comportamiento energético. En los meses calurosos, la ventilación cruzada realizada a través de pequeñas aberturas en las fachadas y mediante los lucernarios orientados a norte, permiten, junto a la inercia térmica del edificio, una temperatura de confort que evita el uso del aire acondicionado. En invierno conseguimos el mismo confort gracias al aumento del aislamiento térmico en las fachadas y el uso de una caldera de biomasa conectada a los captadores solares en la cubierta.
El proyecto incluye un sistema de recogida de aguas pluviales a un depósito enterrado para su utilización tanto en el riego del jardín como en las aguas grises de la casa. En la construcción de la Casa MMMMMS, todos los materiales utilizados provinieron de industrias locales.
PROYECTO NOMINADO EUROPEAN UNION PRIZE FOR CONTEMPORARY ARCHITECTURE – MIES VAN DER ROHE AWARD 2015
The MMMMMS house is placed at the outskirts of Camallera, in a recent development area facing the village. Due to the location, the house is openly visible from the village.
The local building regulations are straightforward, specifying mere general characteristics for the new houses, such as stone cladding, or sloped roofs with “arab” tiles. The main aim of these regulations is to lead new buildings to look like old rural houses, the so called Catalan “masias”.
The aim of the project was not to think of the “masia” as an isolated building, but as one that makes sense in a rural landscape and on the agricultural land. The traditional Catalan house would not make sense without its true agricultural context; even less when there are 20 similar houses in an area of just 10 hectares.
Therefore, rather than portraying a traditional rural house, the project looks for another type of a relationship to the countryside, making a connection to the farm storages around this area.
The spatial organisation of the house follows the logic of a warehouse, generating a large volume within which smaller units are placed, to offer intimacy. Bedrooms, kitchen and bathrooms are placed in “boxes” inside the “storage”. Between these, crossed views and circulations offer direct relationships to the landscape around the house.
The circulation space inside the house can be understood almost as an exterior space, while the boxes, are places for being “inside”. The height of the common spaces, and their direct relationship with the outside, make you feel as if you were in an open space all the time, enjoying the surrounding landscape and nature.
Following these ideas, the house vanishes at one end. Here the exterior space is under a canopy, which offers shade, views, and a central space for the house, again, outside.
The house has been designed to be a low energy building. For the hot seasons we have planned a system for crossed ventilation via small openings in the façades and north-oriented skylights, which allow very comfortable temperatures without any need for air conditioning. For the winter, the house has increased wall thickness and insulation, and the heating is provided by a high performance wood-chip heater, which is connected to solar panels, also supplying hot water.
The rainwater is collected under an underground water tank, which provides “grey” water for the garden and toilets.
All the materials for the construction are sourced from local producers and suppliers.
Arquitectos / Architects: Anna & Eugeni Bach
Colaboradores / Collaborators: Carina Silva, Sara Matías, Albert Cabrer, arquitectos; Eulàlia Cudolà, aparejadora; Masala consultors, estructuras.
Superfície / Surface: 300 m2
Ubicación / Address: Camallera, Gerona, Cataluña, España.
Fecha de finalización / End date: 2014
Constructora / Constructor: Calam-Tapias Construccions
Industriales / Companies involved: Lampistería Illa (instalaciones), Carrera Fusters (carpintería de madera), Magem Pintors (pintura), Consmevi, S.L. Construccions metàl.liques (estructura metálica), Fusteria Alumini Llavina (carpintería aluminio), J.Riera Grup Gamma (revestimientos).
Fotografías / Photographs: Eugeni Bach
































