Los dos últimos pisos de una finca del Ensanche de Barcelona debían reformarse en una única vivienda que aprovechara las terrazas existentes.
El piso inferior consistía en una vivienda de unos 65 m2, con un único frente hacia la calle e iluminación a un patio interior donde comunicaban la cocina y el baño.
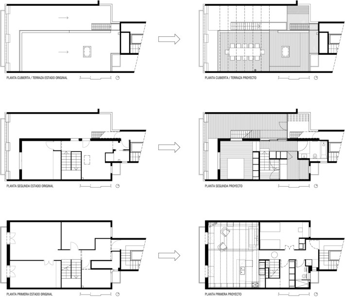
El apartamento superior, de unos 40 m2, había sido construido con posterioridad, probablemente durante los años 60, cerrando un volumen en la cubierta del edificio que se aleja tanto de la fachada principal como de una de las medianeras, liberando una estrecha terraza en este perímetro.
La organización de la vivienda orbita alrededor de la escalera. Ésta se convierte en algo más que un elemento de comunicación entre las dos plantas, absorviendo la cocina y un espacio de almacenaje en la planta inferior; y el estudio y el espacio para la colada en la superior. La escalera es también un espacio de relación visual entre plantas, a través de una ventana en el rellano y una gran abertura en el estudio superior que permiten visuales desde éste hasta la cocina. Esta solución permite que la relación entre las plantas sea más natural, y se pueda entender la vivienda como una sola, y no como la agregación de dos plantas superpuestas.
Dada la superfície de cada planta, entendimos que debíamos organizar la inferior como planta principal, donde alojar la entrada, la sala de estar, el comedor, la cocina, una habitación para los niños y un baño; y la planta superior como espacio más íntimo de los padres, con su habitación, baño y estudio.
En las terrazas, una escalera abatible permite que el espacio de la terraza inferior, algo estrecha por naturaleza, se aproveche al máximo, dejando la superior como espacio de utilización más puntual, para algunas celebraciones. Un toldo retráctil en la terraza superior protege del sol de mediodía y, más importante aún, define estos espacios convirtiéndolos en unas estancias, la inferior a doble altura, entre lo interior y lo exterior.
El suelo hidráulico existente se había eliminado en reformas anteriores y sólo quedaban piezas para la mitad de la superfície, pero tuviemos la suerte (y estuvimos atentos) que en el mismo momento que empezábamos la obra, en otro piso de la finca se estaba haciendo una reforma donde iban a tirar las piezas hidráulicas de éste.
Recuperamos todas las piezas que pudimos de ambos pisos y las clasificamos por tipos para ver qué opciones teníamos con un número de piezas que encajaba justo para la superfície de la planta inferior. La colocación de las piezas, después de varias opciones, acabó definida por unas franjas por tipos, independientes de la distribución, que ayudan a entender la planta como un único espacio contínuo.
En esta planta, toda la carpintería de madera, tanto puertas como ventanas, se conserva, manteniendo el “espíritu” del Ensanche que este piso había tenido. En la planta superior, en cambio, donde no había ningún material digno de conservación, tanto el suelo como las ventanas se sustituyeron por elementos nuevos.
Autor: Anna & Eugeni Bach, arquitectes
Fecha de finalización de la obra: 2013
Superficie construida: 112 m2 + 45 m2 terrazas
Constructor: Oak 2000, S.L.
Emplazamiento: c/ Urgell / Floridablanca
Fotografías: Anna & Eugeni Bach
Colaborador: Albert Cabrer



















