Anna & Eugeni Bach

Registro ordenado del trabajo de Anna y Eugeni Bach

  • ABOUT
  • CONTACT
  • NEWS

………………………………..

  • ARQUITECTURA
  • DISEÑO
  • ESCRITOS
  • INSTALACIONES

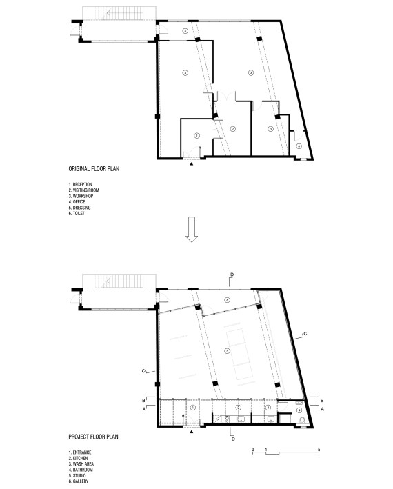
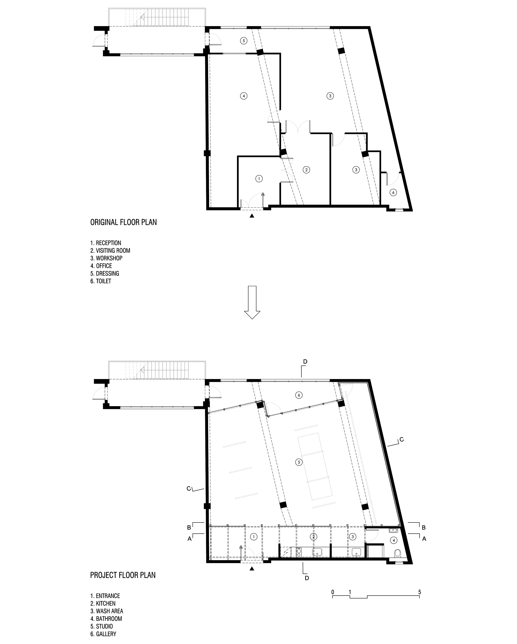
← ESTUDIO PARA EL ARTISTA VICTOR PÉREZ-PORRO

A&EB_Perez-Porro_016.jpg

« Imagen precedente
/
Siguiente Imagen »
De annaeugenibach / 07/05/2017 2000 × 2491 píxeles

Compártelo:

  • Compartir en X (Se abre en una ventana nueva) X
  • Comparte en Facebook (Se abre en una ventana nueva) Facebook
  • Enviar un enlace a un amigo por correo electrónico (Se abre en una ventana nueva) Correo electrónico
Me gusta Cargando...
Blog de WordPress.com.

Actualizaciones de Twitter

Tuits de annaeugenibach
  • Suscribirse Suscrito
    • Anna & Eugeni Bach
    • Únete a otros 96 suscriptores
    • ¿Ya tienes una cuenta de WordPress.com? Inicia sesión.
    • Anna & Eugeni Bach
    • Suscribirse Suscrito
    • Regístrate
    • Iniciar sesión
    • Copiar enlace corto
    • Denunciar este contenido
    • Ver la entrada en el Lector
    • Gestionar las suscripciones
    • Contraer esta barra
%d