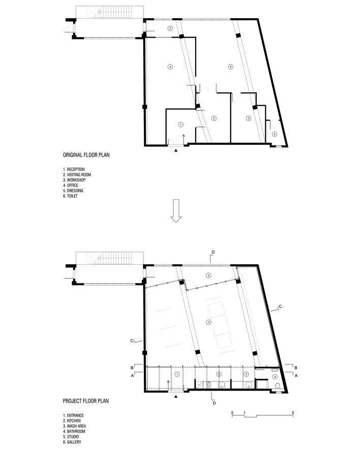
Dos ligeros elementos de madera organizan el programa del estudio en un único espacio abierto.
En fachada, una mampara acristalada busca su lugar entre las dos orientaciones del espacio: por un lado, el perímetro formado por los muros, y por el otro, una estructura oblicua con distinta orientación. El resultado es una pieza en zig-zag que genera dos pequeños espacios entre las ventanas y el nuevo acristalamiento, permitiendo un nuevo “lugar” dentro del espacio abierto así como una galería interior que ayuda a regular la temperatura.
En el otro extremo, una ligera estructura de madera se dispone paralela al perímetro, generando un espacio donde contener la cocina, el fregadero, el baño y la entrada.
Esta estructura sirve de almacenamiento en la parte superior y como apoyo a todo tipo de necesidades –colgar pinceles, pruebas, papeles, etc.- que puedan surgir durante las sesiones de trabajo.
Estado original / original state
ARTIST VICTOR PÉREZ-PORRO STUDIO
Two light wooden elements organize the required program for a painter´s studio into a larger open space.
Next to the façade, a glass wall finds its place among two different orientations of the space: on one hand, the perimeter created by the existing walls, and on the other hand, the tilted structure that follows a different orientation. The result is a zig-zag wall that generates two small places between the glass and the windows, offering a new “room” into the open space that also serves as a natural thermal regulator.
On the other side a light wooden structure is placed parallel to the opposite wall, generating a space that hosts the kitchen, the sink, the toilet and the entrance. This wooden structure is used as well as a storage and as a support for paintbrushes, tests, papers and other items that are useful during work sessions.
Autor / Architects: Anna & Eugeni Bach / Bach arquitectes
Colaboradores / Collaborators: Albert Cabrer, Carla Fernandes, Mario Sousa, arquitectos.
Fecha de finalización de la obra / Completion date: 2016
Superficie construida / Built surface: 110 m2
Constructor: Autoconstruido / Self built
Emplazamiento / Adress: c/ Ramón Turró, Poblenou, Barcelona.
Fotografías / Photographs: Eugeni Bach





















