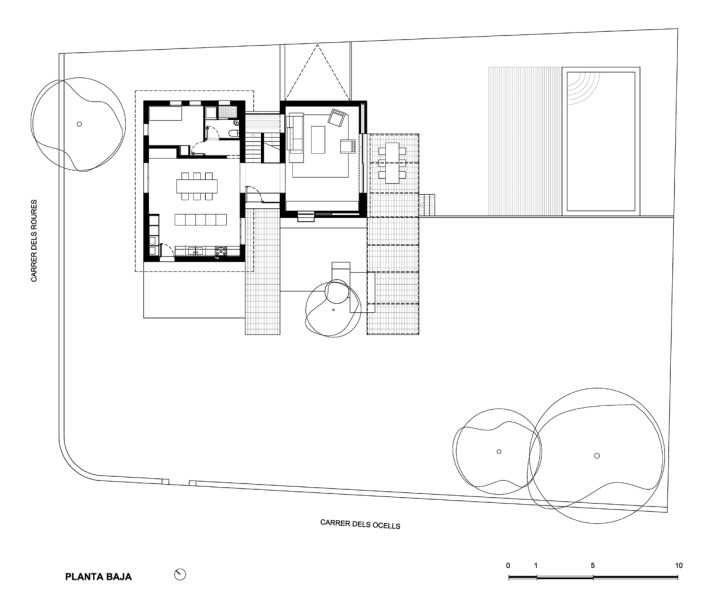
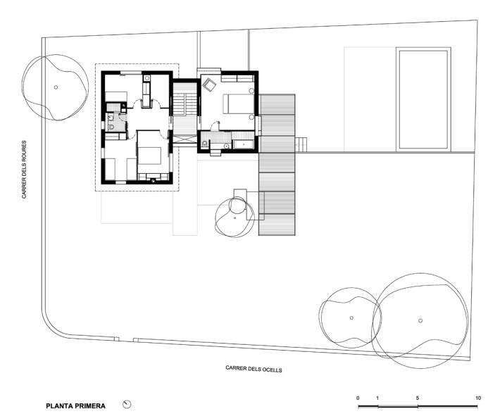
El proyecto consiste en la ampliación de una casa de fin de semana de una urbanización de Sant Esteve de Palautordera, una casa de veraneo de dos plantas construida en varias fases durante los años 80. El nuevo programa para la ampliación prácticamente dobla la superficie inicial y, por lo tanto, la nueva construcción difícilmente podría entenderse como un añadido más de la casa original. El planteamiento pues, desde un inicio, fue tratar la globalidad del proyecto como en una pareja de baile, donde cada uno interpreta su papel bajo la misma música.
La casa original consiste de un volumen principal rectangular al que en fases posteriores se le habían añadido un porche y una galería elevada. La primera operación consiste en la eliminación de estos añadidos, dejando la casa prototípica como tal – una casa con cubierta a dos aguas y paredes blancas perforadas por ventanas.
La ampliación se construye con la misma voluntad de inmediatez que la casa inicial, presentándose como un volumen rectangular de cubierta plana que casi repite la anchura del cuerpo existente y que queda por debajo de la cubierta inclinada de la primera.
La nueva pareja está formada por dos personajes similares. La volumetría, las dimensiones y proporciones de las aperturas, así como los materiales y técnicas constructivas de las dos piezas son similares. Son piezas iguales pero no idénticas; ninguna se erige como pieza principal, aunque es fácil distinguir entre una y otra. No se trata de dos piezas gemelas, a la manera de los personajes de Dupond y Dupont, sino que forman una pareja de singularidades dentro de una unidad, al estilo de Stan Laurel y Oliver Hardy.
La característica más inmediata de esta relación entre similitudes y características propias de cada volumen está en el tratamiento de la fachada. Aunque los muros perimetrales de los dos volúmenes tienen el mismo origen y, básicamente, el mismo tratamiento, la ampliación muestra las capas que constituyen su blanco vestido; el ladrillo, el revoco y la pintura blanca. El rayado de las fachadas da un cierto protagonismo al volumen nuevo que compensa su menor dimensión y aporta una ligereza y una fragmentación que desdibuja sus límites hacia el jardín.
Entre los dos volúmenes, trabajando como una rótula, situamos la entrada y la nueva escalera. Esta zona está ligeramente retirada de los planos de fachada y su altura es menor con el propósito de no erigirse en una tercera pieza equivalente a la pareja principal. Se trata claramente de un espacio entre los protagonistas, que funciona tanto desde la volumetría como desde el programa, organizando las circulaciones y mostrando el origen, el proceso y, en definitiva, la estrategia adoptada.
The project consists on the extension of an existing weekend house near the village of Sant Esteve de Palautordera, one hour north from Barcelona.
The existing house had been enlarged with small additions after its completion, but the new room program almost doubled the original surface of the house, and therefore, the new construction couldn´t be understood as one more new volume added to the original. The strategy, from the very beginning, was to treat the overall project as a “dancing couple”, where every part has its own role while dancing the same song.
The original house consisted of a simple volume which had been altered adding a small porch and a gallery. Our first operation focuses on eliminating these additions, leaving the original house as what we understand to be a prototypical house: a simple volume with pitched roof, white walls and small rectangular windows.
The extention is built with the same goal of spontaneity than the original. It appears as a simple volume which almost repeats the width and is slightly lower than the original house not to compete with the piched roof.
The new couple is made of two similar characters. The volumes, the dimensions and proportions of the windows, as well as the materials and the construction techniques of the two are similar. They are equal but not identical; none of the two tries to be the main volume, but it is easy to distinguish between both. It is not about twin brothers, like the characters of Dupond and Dupont, but rather, a couple of singularities inside a same unity, like Stan Laurel and Oliver Hardy.
The most inmediate relationship between similarities and own charachteristics in each volume can be seen in the façades. Even though both volumes have the same origin, and basilcally the same treatment, the new one shows the layers of its construction; the bricks, the plastering, the white paint,… The stripes in the façade give a certain leading role to the new volume, which compensates its smaller dimension and brings some lightness and fragmentation that vanishes the house when facing the garden.
The new entrance and stairs are placed between the two volumes, working as a joint. This area is slightly set back from the main volumes and its lower height allows it not to be a third piece which could compete with the main couple. It is a space between the leading actors, which works as much for the volumetry as for the internal organization; arranging the circulations and showing the origin, the process and, above all, the main strategy for the whole project.
Autor / Architects: Anna & Eugeni Bach, arquitectes
Colaboradores/ Collaborators: Albert Cabrer, Gracinda Ferreira, Carina Silva.
Fecha de finalización de la obra / Completion date: 2013
Superficie construida / Bult surface: 242 m2 (128 m2 obra nueva + 114 m2 reforma)
Nombre del promotor / Promoter: Familia Anoro-Clusa
Constructor: Calam Tapias Construccions
Emplazamiento / Address: c/ Ocells, 9, Sant Esteve de Palautordera.
Fotografías / Photographs: Jordi Bernadó / Eugeni Bach.



























