¿Qué tienen en común Star Wars, Billy Wilder, Monty Python, los Eames o Charles Moore? Todos ellos forman parte de las “Afinidades electivas”, las referencias personales, del estudio Anna & Eugeni Bach.
A través de 5 conceptos presentes en la obra de Anna & Eugeni Bach, la exposición muestra el particular imaginario de este estudio, formado por referencias, modelos e inquietudes tanto del mundo arquitectónico, como artístico o vital, que acaban formando una base abierta desde la que pensar sus obras.
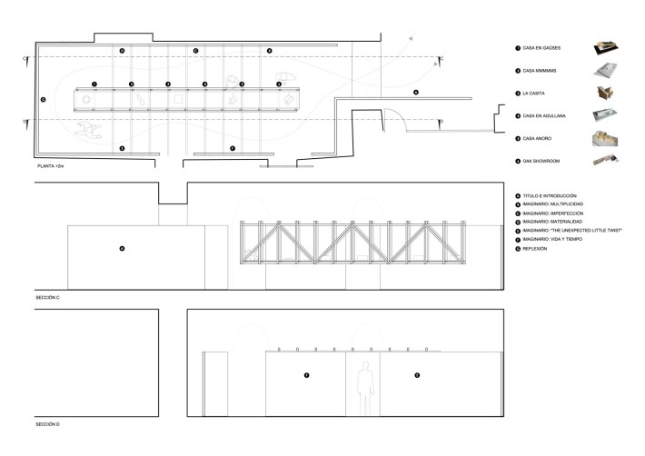
“Multiplicidad”, “Imperfección”, “Materialidad”, “Vida y Tiempo”, y “The unexpected little twist” son los cinco conceptos que agrupan una gran cantidad de imágenes y referentes que permiten entrar en este mundo de afinidades, y que forman el soporte de una obra arquitectónica presente en la muestra a través de seis proyectos.
Estas obras se explican en la exposición a través de seis maquetas que se presentan en una estructura diseñada y construida siguiendo las pautas de los conceptos que la rodean, para mostrar cómo este imaginario puede convertirse en arquitectura. La estructura traduce estos conceptos, apoyándose en los cientos de imágenes que moldean las afinidades electivas de Anna & Eugeni Bach.
La exposición forma parte del ciclo “Sobre la técnica”, organizado por la vocalía de cultura del COAC Gerona.
- Anna & Eugeni Bach – Del 10 de octubre al 7 de diciembre de 2014
- CaboSanRoque – Del 12 de diciembre al 8 de febrero de 2015
- Bevk Perovic – Del 13 de febrero al 12 de abril de 2015
- Albert Serra – Del 17 de abril al 14 de junio de 2015
- Langarita – Navarro – Del 18 de junio al 30 de agosto de 2015
Autor: Anna & Eugeni Bach
Fechas de proyecto: Septiembre– Octubre 2014
Fechas de montaje: 8 y 9 de octubre de 2014
Exposición: Del 10 de octubre al 7 de diciembre de 2014
Emplazamiento: Sala de exposiciones “La Cova” del Colegio Oficial de Arquitectos de Cataluña, Demarcación de Gerona.
Fotografías: Eugeni Bach












