El proyecto consiste en un pequeño bloque de tres viviendas mínimas en una parcela entre medianeras en pleno centro antiguo del barrio de Horta, en Barcelona.
La primera reflexión al actuar en un entorno urbano como éste consiste en definir una propuesta que pertenezca al barrio y que conserve el carácter de esta zona tan característica de la ciudad y al mismo tiempo lo haga desde un lenguaje contemporáneo.
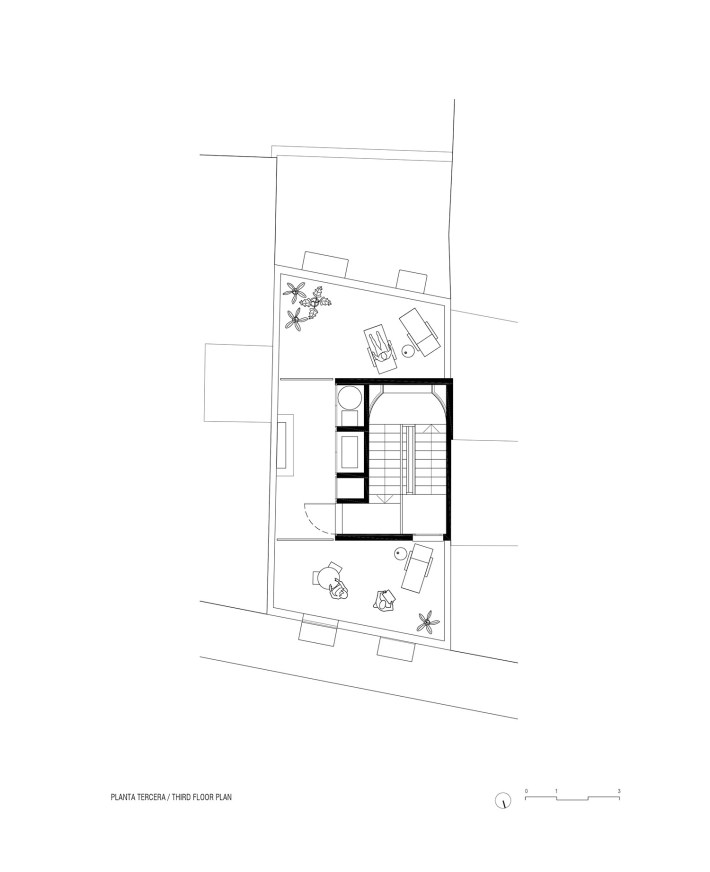
En este sentido, la fachada a la calle está formada por los elementos y proporciones habituales en el barrio: balcones, persianas, zócalos, estucos, etc. Pero lo hace dándole un giro en los detalles y la simplicidad de sus elementos y con la peculiaridad que uno de éstos se escapa del perímetro de la fachada para, por una parte, conseguir atar la finca vecina, que es la única de la calle que no cumple las reglas de “buena vecindad” al tener una planta más de lo permitido, y por otra, para promover el espacio abierto de la terraza, como un espacio habitable más para el uso y disfrute de los vecinos.
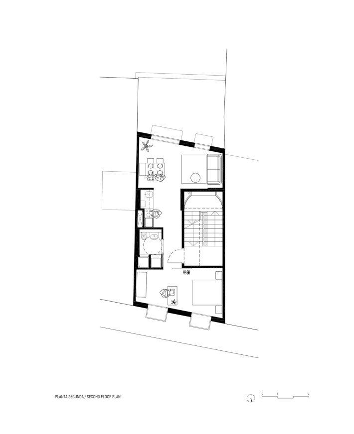
La parcela es excesivamente ajustada en todas sus dimensiones, permitiendo únicamente una vivienda de 40 m2 por planta. Ante la escasez de superficie, la propuesta aporta valor a las viviendas a través de un espacio central que concentra escalera, cocina y baño, permitiendo liberar dos espacios exactamente iguales en ambas fachadas, dando frente uno a la calle y el otro al patio interior de manzana.
Con esta solución, pretendemos aportar una cierta indeterminación en el uso de estas viviendas, de manera que puedan ser utilizadas tanto en una situación tradicional (habitación doble en una fachada y salón comedor en la otra), bien invirtiendo estas piezas en las fachadas opuestas, o presentando la oportunidad de establecer una vivienda compartida, a modo de piso de estudiantes, con dos situaciones simétricas.
Al final, sumando las distintas combinaciones, obtenemos siete maneras de vivir en tres viviendas, siete vidas, como siete ventanas.
SEVEN LIVES
The project consists of a small block of three tiny apartments on a plot between established buildings in the old centre of the Horta neighbourhood in Barcelona.
Our first reflection in acting in this sort of urban environment, so characteristic of the city, is to design a proposal that both conserves the character of the neighbourhood while doing so from a contemporary perspective.
In this sense, the façade facing the street is made up of the usual elements and proportions in the neighbourhood: balconies, blinds, baseboards, stucco, etc. But we give the facade a twist in its details and the simplicity of its elements, with the peculiarity that one of these elements escapes from the perimeter of the façade. The effect is, on the one hand, to tie up the neighbouring lot, which is the only one on the street that does not comply with the rules of “good neighbourliness”, as it has one more floor than is allowed. On the other hand, it promotes the open space of the terrace, as another living space for the enjoyment of the neighbours.
The plot is tight in all its dimensions, allowing for an apartment of only 40 m2 per floor. Given the scarcity of surface, the proposal adds value to the homes through a central space that includes the staircase, kitchen and bathroom. This provides for two equal spaces on both facades, one faces the street and the other the block’s interior patio.
With this solution, we intend to provide a certain indeterminacy in the use of these spaces. They can be set up as a traditional home, with the placement of a double room on one side and a living room on the other, or they can provide for a shared home in the style of a student flat, with two symmetrical spaces.
Summing up all of the different combinations, there are seven ways of living in these three houses, seven lives, like seven windows.
Autor / Architects: Anna & Eugeni Bach / Bach arquitectes
Promotor / Promoter: Auriac
Colaboradores / Collaborators: Roger Molas, Project Architect, Silvia Ripoll, Mario Sousa, architects. Milagros Caputo, student. Eric Broder, student (model). Masala Consultors, structure. Atres80, SL / Joan Escanelles, installations.
Aparejador / Quantity Surveyor: Xavier Bages.
Fecha de finalización de la obra / Completion date: 2021.
Constructor: Construcciones Tomás Gracia, SA.
Emplazamiento / Adress: c/ Horta 107, Barcelona.
Fotografías / Photographs: Eugeni Bach

































